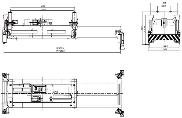
QXZZ bridge container spreader with a tilt device
Pageviews: Release Time:2017-10-18
QXZZ bridge container spreader has tilt device in front and back, which is suitable for ports of inland region, where the vessels are small. In that case, each lifting containers can impact a lot on the position of the vessels, which needs the spreader to adjust. This QXZZ is widely used in Taizhou and Fuzhou ports.

|
TYPE |
QXZZ bridge container spreader with a tilt device |
| Dead Weight | 9.8 t |
| SWL | 40.5t |
| Allowable load eccentricity | Length direction1.25m, width direction 0.26m |
| Corners lug load value | 1.25t×4 |
| retractable values(20’-40’) | ≤25 s |
| Guide plate(0°-180°) | 5-7 s |
| Rotating pin(0°-90°) | ≤1.2 s |
| Guide plate torque | 1200 N.m |
| Supply voltage | AC380V(3P) |
| Frequency | 50HZ or 60HZ |
| Control voltage | AC20-25V |
| Total power | 7.5 kw |
| Motor overload protection value | MAX 18A |
| Degree of protection | IP54 |
| Solenoid valve voltage | Upon to clients |
| Oil Pump displacement | 30L/min |
| System work pressure | 100 bar |
| oil tank capacity | 120L~150L |
| Operating ambient temperature | -20℃-+40℃ |
| Form of rotating pin | ISO folating pin,drove by fuel tank |
| flex drive mode | hydraulic motor chain turn |
| Guide plate equipment | Hydraulic motor driven gear |






