LTD-40 40feet Tire container spreader
Pageviews: Release Time:2017-10-20
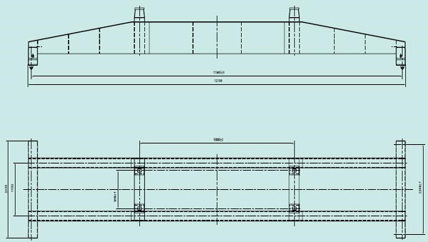
LTD-40 40feet Tire container spreader is evolved by LTD0000 and LTD0001 container spreader (cut off the retractable function), which is suitable for railway 20 or 40 feet container operation and the old crane. This spreader is typically designed for overweight container and widely used in Tianjin Container Terminal Company, Kunming, Yunnan Furui Chemical and so on.







