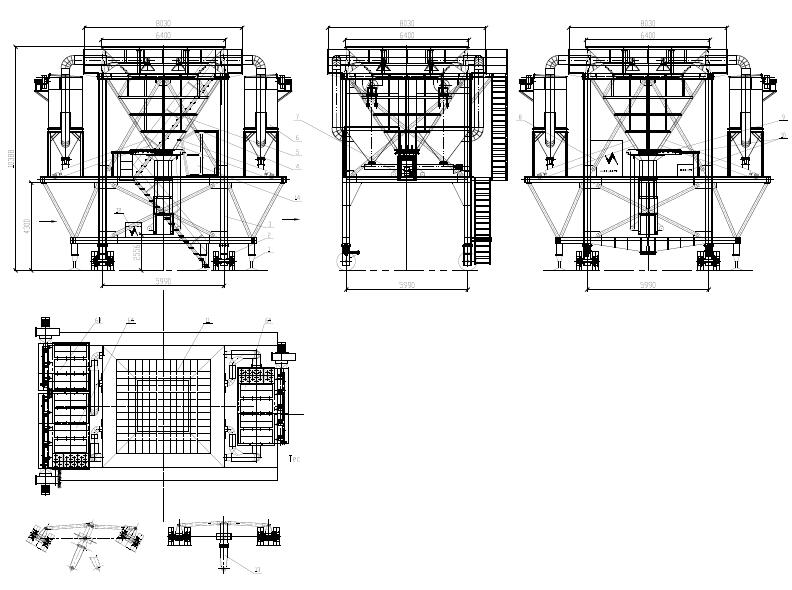
Dust-trap Hopper

- TECHNICAL DATA

Hopper has improve loading and unloading efficiency on ports. when grab loading bulk material from the ship, hopper can load material to truck or conveyor belt to make loading and unloading easier, hopper have many types, such as movable, fixed, dust proof, non-dustproof type. We can design hoppers according to customer’s request.






